Casa semindipendente in vendita

Guarene, Via Luccio
€ 230.000
6 locali 6 locali
250 Mq 250 Mq
2 bagni 2 bagni

Casa semindipendente in vendita

Guarene, Via Luccio

Descrizione annuncio

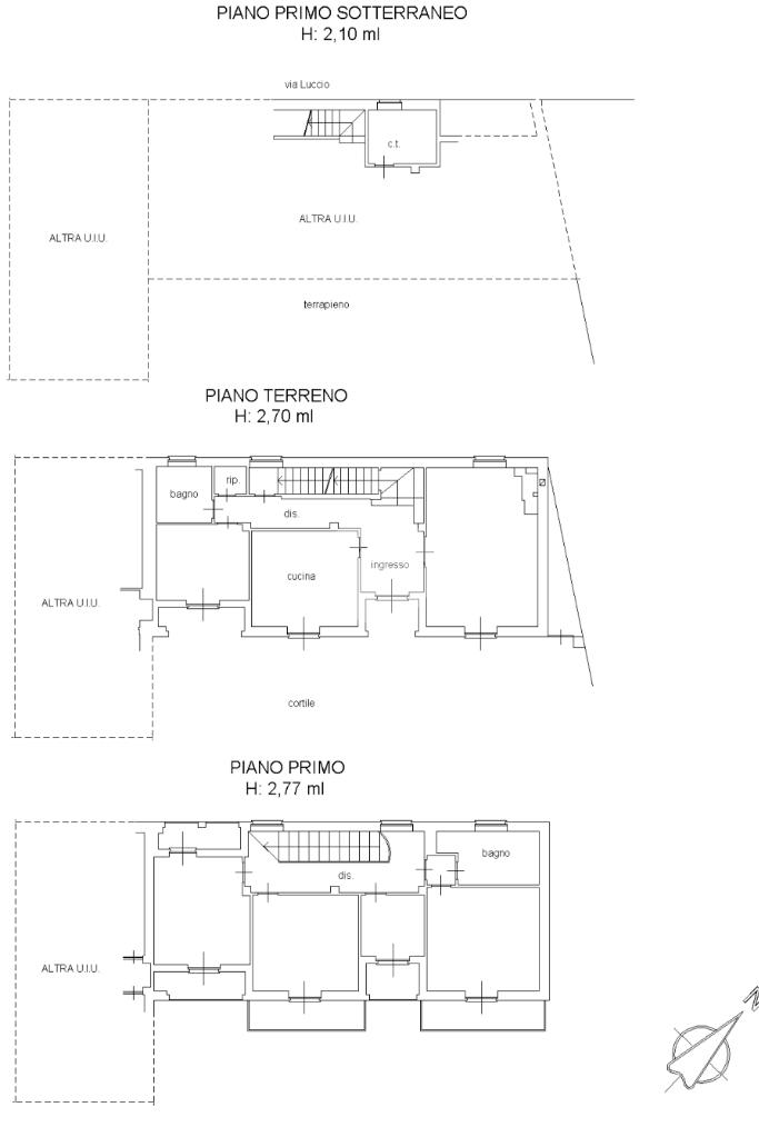
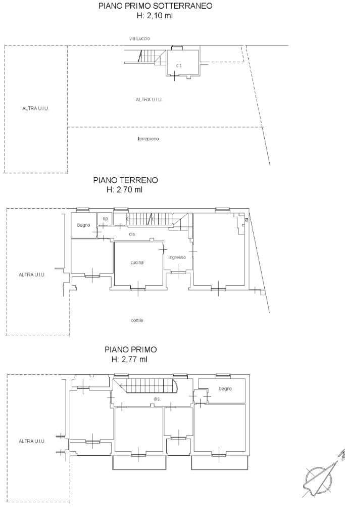
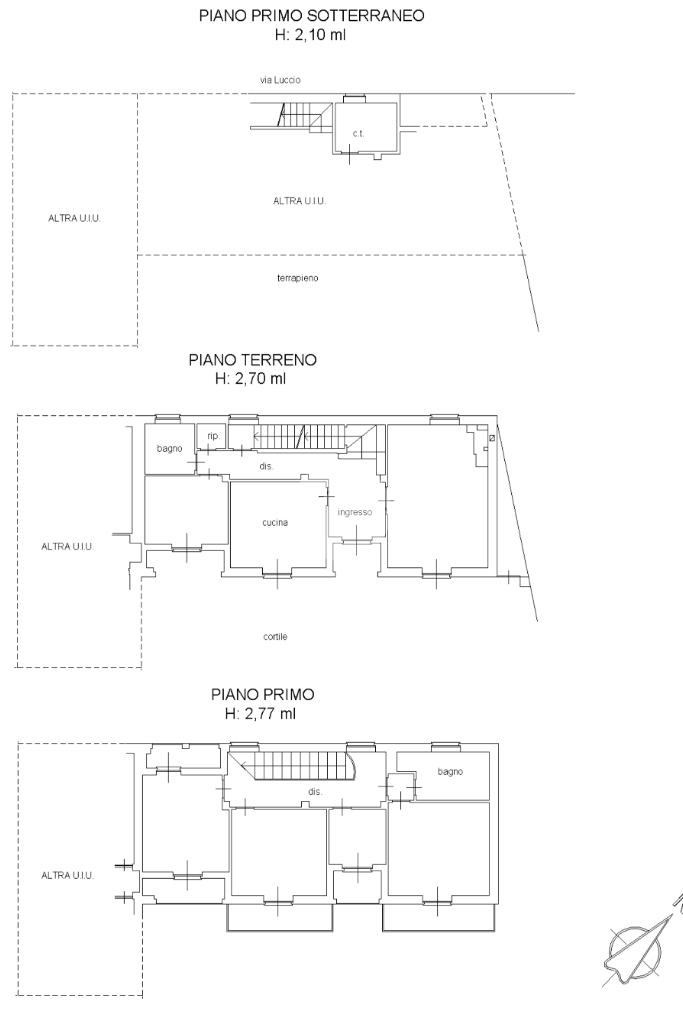
Nel comune di Guarene, ai piedi del suggestivo castello, è disponibile da subito per la vendita una casa semindipendente. Questa proprietà, costruita nel 1984, offre una vista panoramica che incanta. Distribuita su più livelli, la casa presenta un ampio salone ideale per momenti di convivialità, una cucina abitabile, uno studio perfetto per chi lavora da casa, e al primo piano tre camere da letto e uno studio da sfruttare come cabina armadio o ripostiglio, che garantiscono spazio e comfort. Sono presenti due bagni, pensati per soddisfare le esigenze di una famiglia. All'esterno, un cortile e un giardino privati offrono un'oasi di tranquillità, mentre un portico coperto può ospitare comodamente due auto. L'ampia cantina al piano seminterrato aggiunge ulteriore spazio per lo stoccaggio. Nel prezzo è inclusa la vendita della casa adiacente con ingresso indipendente, da ristrutturare ideale come casa vacanza. Questa proprietà rappresenta un'opportunità unica per chi cerca una residenza spaziosa e ben posizionata nel cuore di Guarene.

Mostra tutto

Nelle vicinanze

Trasporto pubblico Trasporto pubblico
Guarene (bv. Mombelli)
Guarene (bv. Mombelli)
250 m
Guarene (Posta)
Guarene (Posta)
270 m
Ricariche auto elettriche Ricariche auto elettriche
Greeneria
600 m
Scuole Scuole
Scuola Elementare Vaccheria
1,5 Km
Scuola Primaria Suor Tecla Merlo
2,0 Km
Scuole
3,0 Km
Farmacia Farmacia
Farmacia Santa Chiara
1,4 Km
Farmacia Dr. Cravero
2,3 Km
Parafarmacia Conad
2,4 Km
Supermercati Supermercati
Eurospar
2,0 Km
Conad
2,4 Km
Negozi Negozi
Il Forno delle Delizie
2,2 Km
Vestebene Factory Store
2,3 Km
Chiaro di Luna
2,5 Km
Bar Bar
Bar Langhe
2,1 Km
Caffè 51
2,3 Km
Good Cafè
2,6 Km
Mini Bar
2,8 Km
Ristoranti Ristoranti
Ristorante Il Veliero
1,3 Km
Pizzeria Da Mario
1,4 Km
Trattoria Del Peso
1,7 Km
Trattoria Bric
1,8 Km
Sushi Yo
1,9 Km
Mostra tutto

Caratteristiche

Rif.:
61120170
Piano:
2 di 2 (Piano su più livelli)
Box:
2
Posti auto:
2
Balconi:
4
Camere da letto:
3
Mostra tutto
Prezzo Prezzo
€ 230.000
Rata mutuo Rata mutuo
€ 1.086 / mese
Spese annue Spese annue
€ 0
Proponi il tuo prezzoProponi il tuo prezzo

Classe Energetica

G
G
G
G
G
G
G
G
G
EP globale non rinnovabile:
386.65 kW h/m² anno
EP globale rinnovabile:
3.34 kW h/m² anno
EP invernale del fabbricato:
EP estiva del fabbricato:
Anno di costruzione:
1984
Riscaldamento:
Autonomo
Tipo impianto:
A radiatori
Tipo alimentazione:
Metano

Ti interessa visionare l'immobile?

Fissa un appuntamento  Fissa un appuntamento

Richiedi informazioni

Clicca su Leggi per aprire l'informativa
* Questi campi sono obbligatori

Calcola il tuo mutuo

Semplice e senza impegno
Anticipo

( % )
Mutuo

( % )

pochi semplici passi

inserisci i tuoi dati
Questionario completato
Grazie per aver richiesto un appuntamento senza impegno con un nostro Consulente del Credito e Assicurativo.

Hai inserito correttamente tutti i dati necessari e a breve riceverai una e-mail con un link da convalidare per inviare i tuoi dati.
Affiliato
Immobiliare Sommariva Sas
Via Roma, 14 12040 Sommariva Perno (CN)

Il nostro staff


  • Luca Pistore
    Affiliato

  • Gloria Gramaglia
    Coordinatrice
Via Roma, 14 12040 Sommariva Perno (CN)
Zona: Sommariva Perno e del Bosco-Monticello-S.Vittoria-Pocapaglia-Sanfrè-Baldissero-Corneliano-Piobesi
Mostra su mappa
Orari: lunedì - venerdì: 9:00-12:30 15:00-19:30 sabato 9:00-12:30 15:00-18:00
Affiliato
Immobiliare Sommariva Sas
Via Roma, 14 12040 Sommariva Perno (CN)

2025 Tecnocasa Franchising S.p.A. - P. IVA 08365160152 - Via Monte Bianco 60/A 20089 Rozzano (MI). Ogni agenzia ha un proprio titolare ed è autonoma. Privacy policy | Policy utilizzo | Cookie policy